Art of the Ancient Americas
About the collection
The Mint’s Art of the Ancient Americas collection features an archaeological collection of works that share the extensive cultural heritage of indigenous nations from North, Central, and South America.
This collection showcases more than 2,500 artworks from the ancient Americas. These works offer a glimpse into the cultural, religious, and political histories of civilizations that flourished before European colonization.
The dedicated galleries present these artifacts from two viewpoints. First, through a “material culture” lens these objects are examined to reveal insights into daily life, social practices, intellectual achievements, and spiritual beliefs. These pieces are art- that is, human creativity and technical expertise that highlight the universal impulse to produce meaningful, emotion-filled objects. Second, the collection explores the aesthetics and techniques of ancient American artists. These works — in earthenware, jadeite and other stones, gold and silver, shell, and fiber — embody the artistic traditions of civilizations whose descendants now form the modern nations of Latin America.
Generously gifted by Dr. and Mrs. Francis Robicsek, this collection is among the largest in the United States, encompassing 4,300 years of artistic achievement from 2800 BCE to 1500 CE.
UNCC Student Exhibits
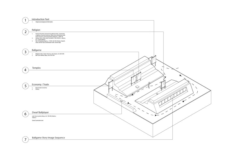
Students in UNCC’s Exhibition Design course, led by Pelin Gokmen, reimagined the display of objects from The Mint Museum’s Art of Ancient Americas collection.

The Jar of Elite Male Flanked by Felines: An Exploration of Recuay Culture
Designers: Elana Jones, Jonah Jones, Hanna Stoddard
Date: 12/12/24
School of Architecture, UNC Charlotte
Instructor: Pelin Alkan
This project proposal studies the historical and societal ties of ceramic craftsmanship within Recuay culture. Through in depth research, this team has developed a series on 3D renders, axonometric drawings, and video walkthrough of a design that celebrates the process and history behind Recauy ceramics. The proposed exhibit takes the shape of the Callejón de Huaylas, where visitors are able to physically follow the land in which the Recuay lived. Throughout this “valley” are smaller rooms that resemble residential buildings within the ancient civilization of Yaynu, each highlighting specific information pertaining to the Recuay and their artform.
Student CV’s:


